




































加藤小屋は〝未完〟である。今回の増築で終わりになるかもしれない。また増築をするかもしれない。はたまた別棟で新築するかもしれない。住んでいる私たちも、設計者である私も、加藤小屋の完成がいつ、どのようなカタチになるのかわかっていない。
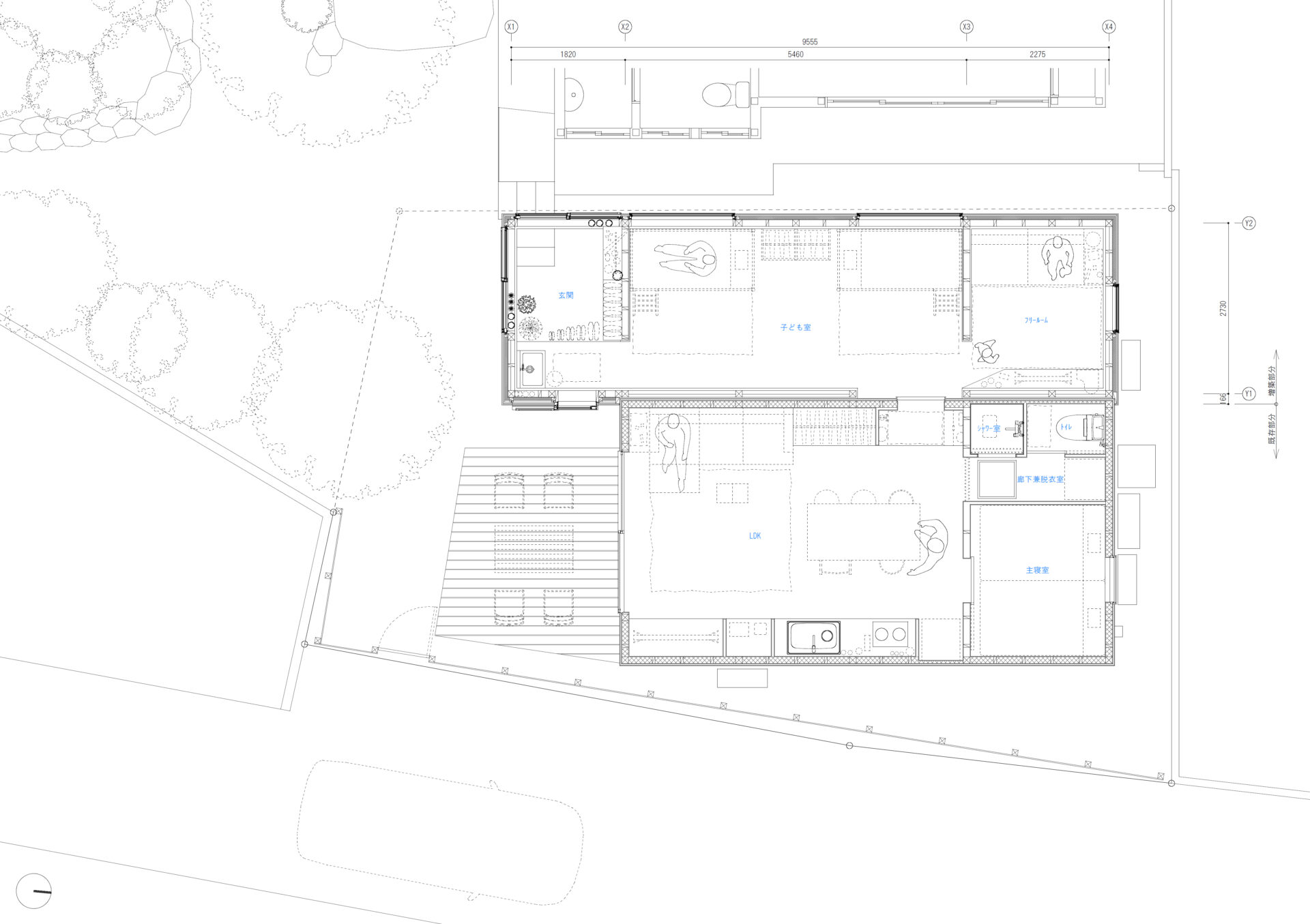
今回、竣工から約6年が経ち、増築工事を行ったが、元々の計画にはなかった。当初は、必要最低限の資金、面積で建設した〝仮の自邸〟であり、10年程度住んだ後、事務所などに転用する予定であった。妻の実家敷地に建っているのだが、色々と不確定要素が多く、それらが残ったまま月日は経っていった。当初、子どもは、2人だったが3人に増え、5人家族となり、子の成長も相まって、身体的、物理的、精神的なキャパオーバーに陥ることが予測できた。そのため、途中から増築工事へと計画を切り替えた。
一期工事の際、必要最低限の資金で建設したため、住宅ローンは組んでいなかった。しかし、住宅ローンを組んだつもりで同額程度の積金を行っていた。その積金を活用し、その範囲内で再度、住宅ローンを組まずに増築工事を行うこととした。そのため予算は決して多くはなかった。昨今の資材高騰などから考えて厳しい数字なのは明白であった。
冒頭でも触れたが、加藤小屋は〝未完〟である。それは作り方にも反映された。外壁や屋根は外断熱とし、かつ内装材が不要な防火構造認定を採用しているため、壁、天井は張っていない。床はモルタルで仕上げ、外壁もモルタル素地で納めた。言ってみれば〝未完の箱〟を作った感覚に近い。それにより、手間や材料は大幅に削減され、ローコストでの建設が可能となった。最初から全て揃った状態を目指せば面積を犠牲にせざるを得なくなるが、敢えて不揃いにすることで面積に充当ができ、かつ、カスタマイズする余地が生まれる。住まいながら、諸々の変化に応じて、手を加えていくことを前提に設計を行った。
その時々の状況に応じて、徐々に変化させ、完成させていくプロセスは、不確定要素が多いものの可能性に満ちていると感じる。その可能性や過程を楽しみながら、家族と共に成長していく家づくりを続けていきたい。
HOUSE-KT(加藤小屋|増築工事)
竣 工:2025年4月
所在地:神奈川県秦野市
用 途:専用住宅
構 造:木造平屋建
規 模:約55㎡(増築面積:約25㎡)
施 工:バウムスタンフ
撮 影:花岡慎一
※一期工事の竣工写真は下記リンクからご覧頂けます。
HOUSE-KT|加藤小屋|一期工事
